projects
info
projects
info
Robin Brandes
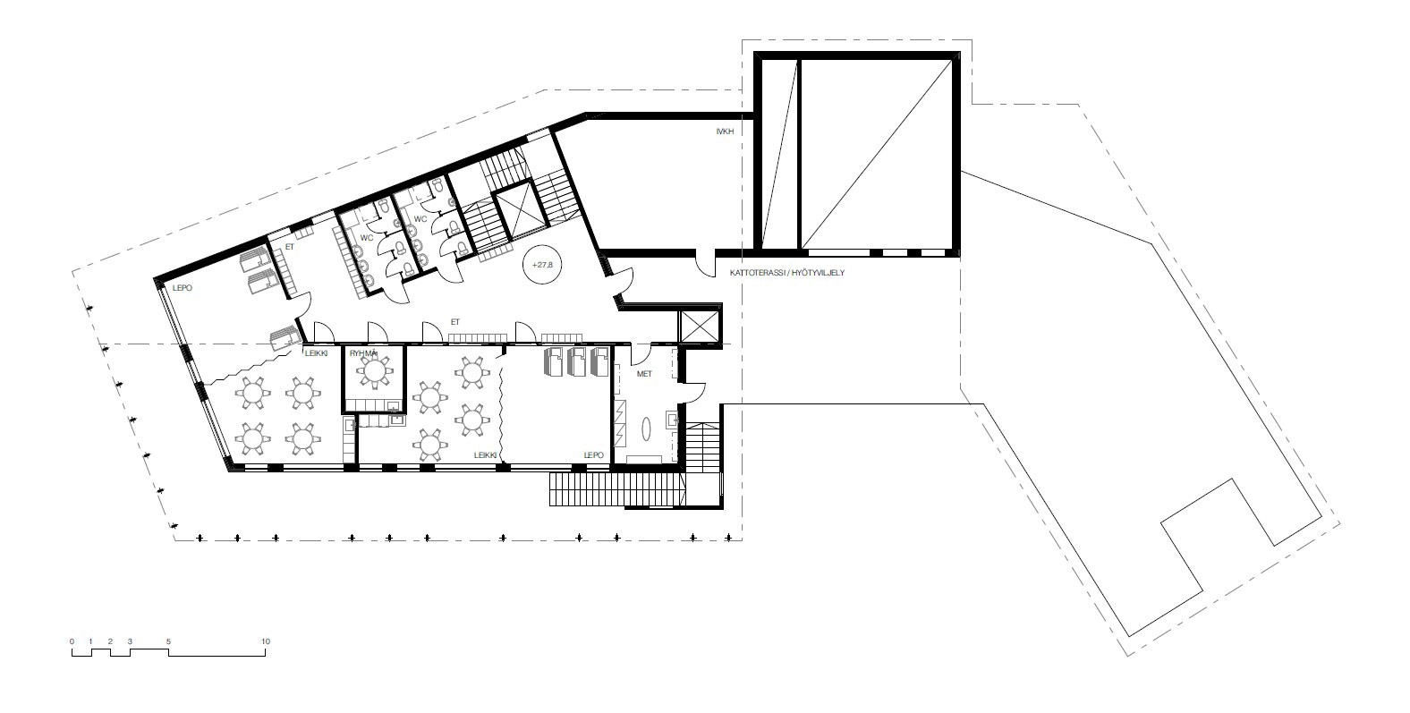
Kindergarten
Spring 2022
In collaboration with Hannaleena Posio.
Primary materials: wood
Päiväkoti
Kevät 2022
Yhteistyössä: Hannaleena Posio.
Pääasialliset rakennusmateriaalit: puu
↑
Back to Top